- 株式会社平和住宅
- 戸建



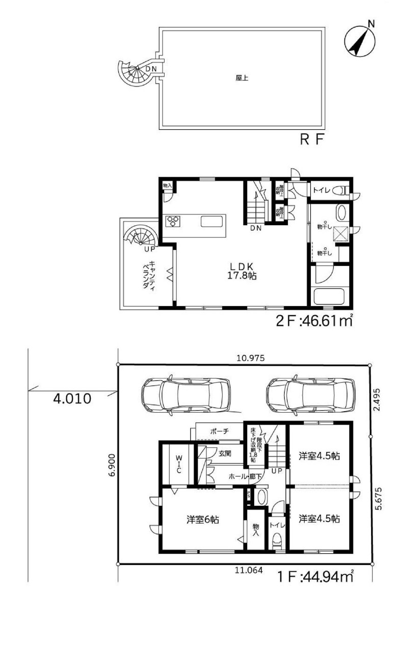
◇優れた耐震・耐火・耐久性 ◇60年点検システム継承 ◇広々キャンティベランダから屋上利用 ◇室内に物干しスペース
物件詳細情報
物件No.20000444952
| 所在地 | 千葉県市川市大野町1丁目 | ||
|---|---|---|---|
| 交通 | 武蔵野線「市川大野」駅徒歩14分 | ||
| 間取 | 3SLDK (LDK17.8帖、洋室6帖、洋室4.5帖、洋室4.5帖、S1.7帖) | ||
| 土地面積 | 95.53m² 公簿 (私道372.89m²別に有、私道持分比率:1/200) | ||
| 建物面積 | 91.55m² 公簿 | ||
| 構造・規模 | 軽量鉄骨造 2階建て | 築年月 | 2021年2月築 |
| バルコニー | 南西向き | 施工会社 | 旭化成ホームズ株式会社 |
| 地目 | 宅地 | 用途地域 | 第一種低層住居専用地域/第一種住居地域 |
| 建ぺい率 | 50%/60% | 容積率 | 100%/200% |
| 都市計画 | 市街化区域 | 駐車スペース | 2台以上(カースペース:縦列) |
| 現況 | 居住中 | 引渡時期 | 相談 |
| 引渡条件 | 現況渡し | 権利種類 | 所有権 |
| 接道 | 南西側4M私道に6.9M接道 | 小学校区 | 大野小学校(1100m) |
| 中学校区 | 下貝塚中学校(1400m) | 取引態様 | 専任媒介 |
| リフォーム |
|
||
| 設備 | 公営水道、個別浄化槽、都市ガス | ||
| 備考・制限等 | カースペース(3台可)は車種によります。 | ||
こだわり項目
高台整形地平坦地緑豊かな住宅地地盤調査済LDK15帖以上耐震構造屋上建築確認完了検査済証浄水器ガスコンロシステムキッチンカウンターキッチントイレ2ヶ所シャワー付洗面台浴室乾燥機浴室暖房追焚機能浴室1坪以上全居室フローリングウォークインクローゼット24時間換気システム保育園・幼稚園800m以内スーパー400m以内コンビニ400m以内公園800m以内
- ※価格は物件の代金総額を表示しており、消費税が課税される場合は税込み価格です。(1,000円未満は切り上げ。)
税率は引き渡し時期により異なりますので、各物件の詳細につきましてはお問い合わせください。 - ※敷地権利が借地権のものは価格に権利金を含みます。
- ※制作中に内容が変更される場合もありますので、あらかじめご了承ください。
- ※購入の前には物件内容や契約条件についてご自身で十分な確認をしていただくようにお願いいたします。
- ※完成予想図はいずれも外構、植栽、外観等実際のものとは多少異なることがあります。
- ※CG合成の画像の場合、実際とは多少異なる場合があります。
周辺地図
周辺施設一覧
- ショッピングセンター
- スーパー
- コンビニ
- ドラッグストア
- ホームセンター
- 飲食店
- その他店舗
- 商店街
- 大学
- 専門学校
- 高校・高専
- 中学校
- 小学校
- 保育園
- 幼稚園
- 公民館・児童館
- 病院
- 郵便局
- 役所
- 図書館
- 金融機関
- 警察・消防
- 趣味・娯楽施設
- 公園・運動施設
- 周辺の街並み
- 駅
- その他
お問い合せ先
- 株式会社平和住宅
- お電話でのお問い合わせは
047-314-0005「ホームページを見た」とお問い合わせください - 千葉県市川市南八幡3-5-16
- 営業時間:9:00~19:00
- 定休日:水曜日
- 免許番号:千葉県知事免許(4)第15873号
- 株式会社平和住宅
- 戸建

